Васил Пенчев,
Мариета Янчева-Попова,
Десислава Колева
Технически университет – София (България)
https://doi.org/10.53656/voc25-5-6-08
Резюме. Пътнотранспортните произшествия (ПТП) са събития, вследствие на които се нанасят материални и нематериални вреди. В зависимост уврежданията върху лицата и обектите е необходимо да се предприемат различни по вид и неотложност действия, наречени процесуално-следствени. Тези действия се извършват от разследващите органи и са регламентирани чрез правни норми, заложени в Наказателнопроцесуалния кодекс (НПК). При определените в нормативната уредба случаи се извършват оглед на местопроизшествието и документиране на основни находки, намиращи се в мястото на конкретното събитие. Тези находки – техният вид, место- и взаимно положение често пъти служат за изходни данни относно последващия технически и криминалистичен анализ на настъпило събитие. В този смисъл важността на тези действия е неоспорима и качественото им извършване до голяма степен е гаранция за последващ адекватен анализ на събитието.
Ключови думи: пътнотранспортно произшествие, разследване, неотложни и първоначални следствени действия
- Процесуални предпоставки, изисквания и изпълнение
Неотложните и първоначални следствени действия започват в почти всички случаи с извършване на оглед на местопроизшествието. Съгласно разпоредбата на чл. 155 НПК1 огледът се извършва с цел да се разкрият, изследват или запазят следи от произшествието и други необходими данни за изясняване на обстоятелствата по конкретния случай. Извършва се от оправомощен за тези действия компетентен орган – орган на разследването (разследващ полицай или следовател), при спазване на всички разпоредби, налични в нормативната уредба1 относно извършването на тези действия. Всички находки е необходимо да се фиксират чрез протокол за оглед на местопроизшествие и фотоснимки от местопроизшествието. Информацията, съдържаща се в протокола за оглед, трябва да бъде изчерпателна, точна, ясна и последователна (Cekov, 1995, 344). Находките от местопроизшествието освен в протокол за оглед се фиксират и фотографски – чрез ориентиращи, обзорни, възлови и детайлни снимки (Koceva, 1987). Възможен начин за фиксиране на находките е и чрез графични документи – скици, планове и схеми, които, за съжаление, рядко се изготвят от разследващите, най-вече поради липса на техническа компетентност за графично представяне на находките във вид на документ.
- Технически особености на различните видове мероприятия
2.1. Оглед на местопроизшествие
Огледът на местопроизшествието е най-често срещаното първоначално и неотложно следствено действие. Той позволява да се осигури информация, която е достоверна и е свързана с разследваното произшествие (Belenski, 2010, 94). Извършва се оглед на мястото, където е настъпило събитието и/или са причинени следи от него (Koceva, 1998, Cankov, 2004).
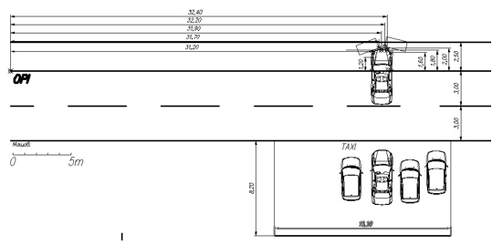
Първото и задължително действие на разследващия орган след пристигане на мястото на настъпване на събитието е да бъде избрана основна точка, наречена „Ориентир“ (ОР), спрямо която да бъдат документирани положенията на находките, открити при огледа. За ОР се приема обект, разположен в непосредствена близост до мястото на настъпване на произшествието и трайно прикрепен към земната повърхност. Целта е да не може този обект да бъде лесно заличен поради възможност от възникване на необходимост за провеждане на последващи действия, а именно повторен оглед, следствени експерименти и други действия по разследването. Спрямо избрания ОР и според вида на пътния участък, в който е настъпило произшествието, се предприемат съответните действия за определяне на точното положение на находките и чрез използването на различни оразмерителни методи, представени по-долу.
– Чрез координати в правоъгълна координатна система
При този метод пътният участък се приема за равнина, като надлъжното направление на пътя се приема за абсцисна ос, а напречното – за ординатна ос (Savova, 2020; Savova, 2024). За начало на декартовата координатна система, свързана с пътния участък, се приема избраният от разследващия орган ОР, спрямо който се нанасят координатите (почти винаги – дължини) за всяка една характерна точка от местопроизшествието (фиг. 1).
Координатите се определят с точност до сантиметри, като следва да се установят размерите на пътния участък, наличието или не на хоризонтална пътна маркировка и вертикална сигнализация, както и техните видове и разположения в документирания пътен участък.

Фигура 1. Примерно разположение на координатите на находки в правоъгълна координатна система
– Чрез координати в полярна координатна система
При този метод пътният участък се приема за равнина, като надлъжното направление на пътя се приема за абсцисна ос, а напречното – за ординатна ос. За начало на координатната система, свързана с пътния участък, се приема избраният от разследващия орган ОР, спрямо който се нанасят координатите (винаги – дължини и ъгли спрямо хоризонталната или вертикалната координатна ос) за всяка една характерна точка от местопроизшествието. Координатите ъгли се определят спрямо едната от осите на координатната система с начало ОР (фиг. 2).
Координатите дължини се определят с точност до сантиметри, като следва да се установят размерите на пътния участък, наличието или не на хоризонтална пътна маркировка и вертикална сигнализация, както и техните видове и разположения в документирания пътен участък. Координатите ъгли се определят по възможност в стойности до цял градус и с помощта на измервателен инструментариум за ъглови отклонения.

Фигура 2. Примерно разположение на координатите на находки в полярна координатна система
– Чрез триангулачен метод
При този метод пътниятучастък се приема за равнина. Началото на измерванията в пътния участък се започват от начална точка избрания от разследващия орган ОР, спрямо който се нанасят размерите (винаги – дължини) за всяка една характерна точка от местопроизшествието, като всяка една от тези точки трябва да бъде фиксирана с поне две дължини спрямо други точки, произволно избрани от разследващия (фиг. 3).
Координатите дължини се определят с точност до сантиметри, като следва да се установят размерите на пътния участък, наличието или не на хоризонтална пътна маркировка и вертикална сигнализация, както и техните видове и разположения в документирания пътен участък.

Фигура 3. Примерно разположение на находки, документирани чрез триангулачен метод
Горните примери се отнасят за местопроизшествие, което се намира на прав участък от пътното платно. Често пъти обаче в практиката пътнотранспортни произшествия настъпват в зоната на хоризонтални равнинни криви (завои). В такъв случай е необходимо да се определи геометрията на равнинната крива чрез предварителни допълнителни измервания след определянето на ОР за конкретното местопроизшествие.

Фигура 4. Примерно определяне на геометрията на хоризонтална равнина крива с постоянен радиус
Радиусът на равнинната крива се определя чрез измерване на дължина (която в голяма част от случаите се избира като кратна на 10,00 м – 10,00, 20,00, 30,00 и т.н.) Тази дължина се нарича „хорда“ и се бележи най-често с „a“. В средата на тази хорда се измерва разстоянието от хордата до геометричната линия на равнинната крива, като тази дължина се нарича „стрела“ и най-често се бележи с „h“.
Радиусът на равнинната крива се определя с помощта на формалната зависимост:
R = , където R, м – търсеният радиус на равнинната крива, a, м – дължината на хордата, измерена в конкретния случай, h – дължина на стрелата, измерена в конкретния участък (Angelov,1985, 12; Ilarionov, 1989; Karapetkov, 2005). При равенство между стрелите на отделните участъци на кривата може да се направи извод, че същата е с постоянен радиус. В случаи на наличие на равнинна хоризонтална крива е добре да бъде измерена и нейната дължина. На практика това се прави много рядко поради немарливост на разследващите или поради други субективни причини, но тази информация би била ценна при определянето на основните кинематични параметри на движението на участниците в конкретното събитие, чийто оглед се извършва. Измерването на дължината на кривата се извършва най-често с помощта на ролкова ролетка, като е желателно измерванията да се правят с точност до сантиметър.

Фигура 5. Примерно определяне на геометрията на хоризонтална равнина крива с променлив радиус
На фиг. 5 е представено определяне на геометрията на равнинна крива с променлив радиус. Радиусите се определят чрез представената по-горе формална зависимост за всеки отделен участък от пътното платно.
2.2. Фиксиране чрез снимков материал
Особено важно е фиксирането на местопроизшествието чрез снимков материал. Характерните пропуски при този тип дейност е недобро изготвяне на възлови и обзорни снимки, които са от особена важност за първоначалното възприятие на събитието и неговия характер от лицата, неприсъствали на огледа, но ангажирани по един или друг начин с конкретното събитие (напр. прокурори, адвокати, вещи лица). Задължително е да се извършат следните действия с цел пълно и всеобхватно фиксиране на местопроизшествието чрез ориентиращи и обзорни снимки – по възможност от няколко гледни точки. Задължително е да се направят няколко възлови снимки – с обектите на събитието и взаимното им положение както в пространството, така и помежду им. След това идва ред на детайлните снимки. Всички тези действия се извършват от служители на научно-технически лаборатории към областни дирекции на МВР и следва тези служители да са преминали допълнително обучение по темата за фиксиране чрез фотоснимки. Но за съжаление, голяма част от тях или не са запознати с техниката на извършване на такъв тип действия, или от немарливост не изпълняват техническите изисквания за извършване на тези дейности.
- Изводи и обобщения
Представеното в настоящата публикация е с практико-приложна насоченост, което според авторите би било полезно за лицата, ангажирани с извършването на първоначалните и неотложни следствени действия, а именно разследващите органи на досъдебното производство и следствието. Спазвайки принципите и процедурите при извършване на такива действия, ще се повиши качеството на разследването и всички последващи действия от него – експертизи, формулиране и доказване на обвинението, изготвяне на обвинителен акт.
БЕЛЕЖКИ
- Наказателнопроцесуален кодекс.
ЛИТЕРАТУРА
Ангелов, А., Петков, Д. (1985). Ръководство за експертно изследване на пътно-транспортни произшествия. София: СБА – ЦС.
Беленски, Р. (2010). Разследване на общоопасни престъпления. София: Сиела. ISBN 978-954-28-0792-6.
Иларионов, В. (1989). Экспертиза дорожно-транспортных происшествий. Москва: Транспорт.
Карапетков, С. (2005). Автотехническа експертиза. София: Технически университет София.
Коцева, Е. (1987). Експертизи при разследване на пътно-транспортни произшествия. Годишник на СУ, 80/81(1), 193 – 237, ISSN 0081-1866.
Кoцева, Е. (1998). Разследване на транспортни престъпления. Варна: ВСУ Черноризец Храбър, ISBN 954-715-045-6.
Цанков, П. и кол. (2004). Съдебни експертизи. София: Ромина, ISBN 954-8971-67-4.
Цеков, Ц. (1995). Криминалистика. София: УИ Св. Климент Охридски, ISBN 954-0708-079.
Savova-Mratsenkova, M. (2024). Graph-analytic analysis of a road traffic accident involving an automobile and a bicycle, AIP Conf. Proc. 2980, 050004, DOI 10.1063/5.0185110.
Savova-Mratsenkova, M., Palagachev, G. (2020). Graph-analytic approach to determine the position of the initial impact in the event of pedestrian accidents, IOP Conf. Ser.: Mater. Sci. Eng. 878 012042, DOI 10.1088/1757-899X/878/1/012042.
REFERENCES
Angelov, A., Petkov, D. (1985). Guide for Expert Examination of Road Traffic Accidents. Sofia: UAB – CC.
Belenski, R. (2010). Investigation of Crimes Against Public Safety. Sofia: Ciela. ISBN 978-954-28-0792-6.
Ilarionov, V. (1989). Road accident investigation. Moskow: Transport
Karapetkov, S. (2005). Automotive technical expertise. Sofia: Technical university Sofia.
Koceva, E. (1987). Expertise in the investigation of traffic accidents. Proceeding of the Sofia University , 80/81(1), 193 – 237, ISSN 0081-1866.
Koceva, E. (1998). Investigation of transport crimes. Varna: VFU, ISBN 954-715-045-6.
Cankov, P. et al. (2004). Forensic examinations. Sofia: Romina, ISBN 954-8971-67-4.
Cekov, C. (1995). Forensic science. Sofia: St. Kliment Ohridski, ISBN 954-0708-079.
Savova-Mratsenkova, M. (2024). Graph-analytic analysis of a road traffic accident involving an automobile and a bicycle, AIP Conf. Proc. 2980, 050004, DOI 10.1063/5.0185110.
Savova-Mratsenkova, M., Palagachev, G. (2020). Graph-analytic approach to determine the position of the initial impact in the event of pedestrian accidents, IOP Conf. Ser.: Mater. Sci. Eng. 878 012042, DOI 10.1088/1757-899X/878/1/012042.
TECHNICAL FEATURES OF URGENT AND PRELIMINARY INVESTIGATIVE MEASURES IN THE ROAD TRAFFIC ACCIDENTS INVESTIGATION
Abstract. Road traffic accidents are incidents that result in both material and non-material damages. Depending on the nature and extent of the harm caused to individuals and property, it is necessary to undertake various procedural and urgent investigative measures. These actions are carried out by the competent investigative authorities and are governed by legal provisions set forth in the Criminal Procedure Code. In cases specified by the applicable legal framework, a scene inspection is carried out, along with the documentation of key findings located at the site of the specific incident. These findings – their nature, location, and mutual positioning – often serve as initial data for the subsequent technical and forensic analysis of the event. In this context, the importance of these actions is undeniable, and their proper execution is, to a large extent, a prerequisite for an adequate and accurate analysis of the incident.
Keywords: Road Traffic Accident; Investigation; Immediate and Initial Investigative Procedures
Dr. Vasil Penchev, Assoc. Prof.
Technical University of Sofia,
Bulgaria
E-mail: vasil_penchev@tu-sofia.bg
Dr. Marieta Yancheva-Popova, Assoc. Prof.
Technical University of Sofia,
Bulgaria
E-mail: myancheva@tu-sofia.bg
Dr. Desislava Koleva, Assist. Prof.
Technical University of Sofia,
Bulgaria
E-mail: koleva_ds@tu-sofia.bg
>> Изтеглете статията в PDF <<

